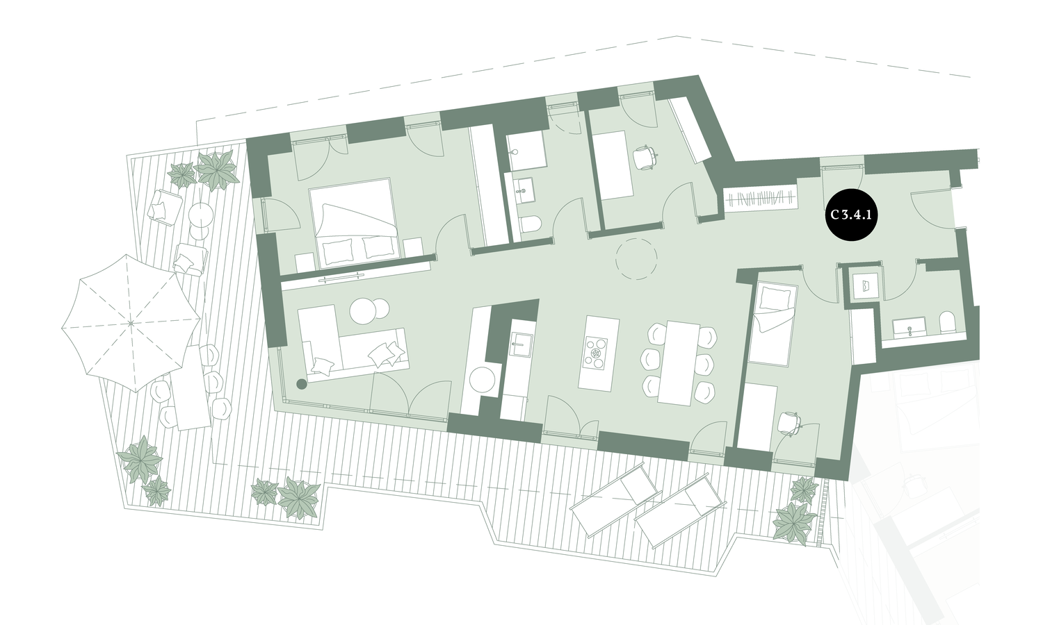
Wohnung C.3.4.1
Conradty-Haus / 4. OG //
Penthauswohnung mit Dachterrasse
| Zimmer | 3,5 |
|---|---|
| Diele | ca. 11 |
| Wohnen/Essen/Kochen | ca. 45 qm |
| Schlafen | ca. 17 qm |
| Kind | ca. 12 qm |
| Arbeiten | ca. 8 qm |
| Bad | ca. 6 qm |
| Gäste-WC | ca. 4 qm |
| Dachterrasse | ca. 59 qm |
| Summe Wohnfläche * | ca. 133 qm |
| Kaufpreis Wohnung | 1.290.000 € |
|---|---|
| 1 Tiefgaragenstellplatz | 39.000 € |
| Gesamtkaufpreis | 1.329.000 € |
* Bei der Flächenberechnung wird die Dachterrasse zu 50 % berücksichtigt.






