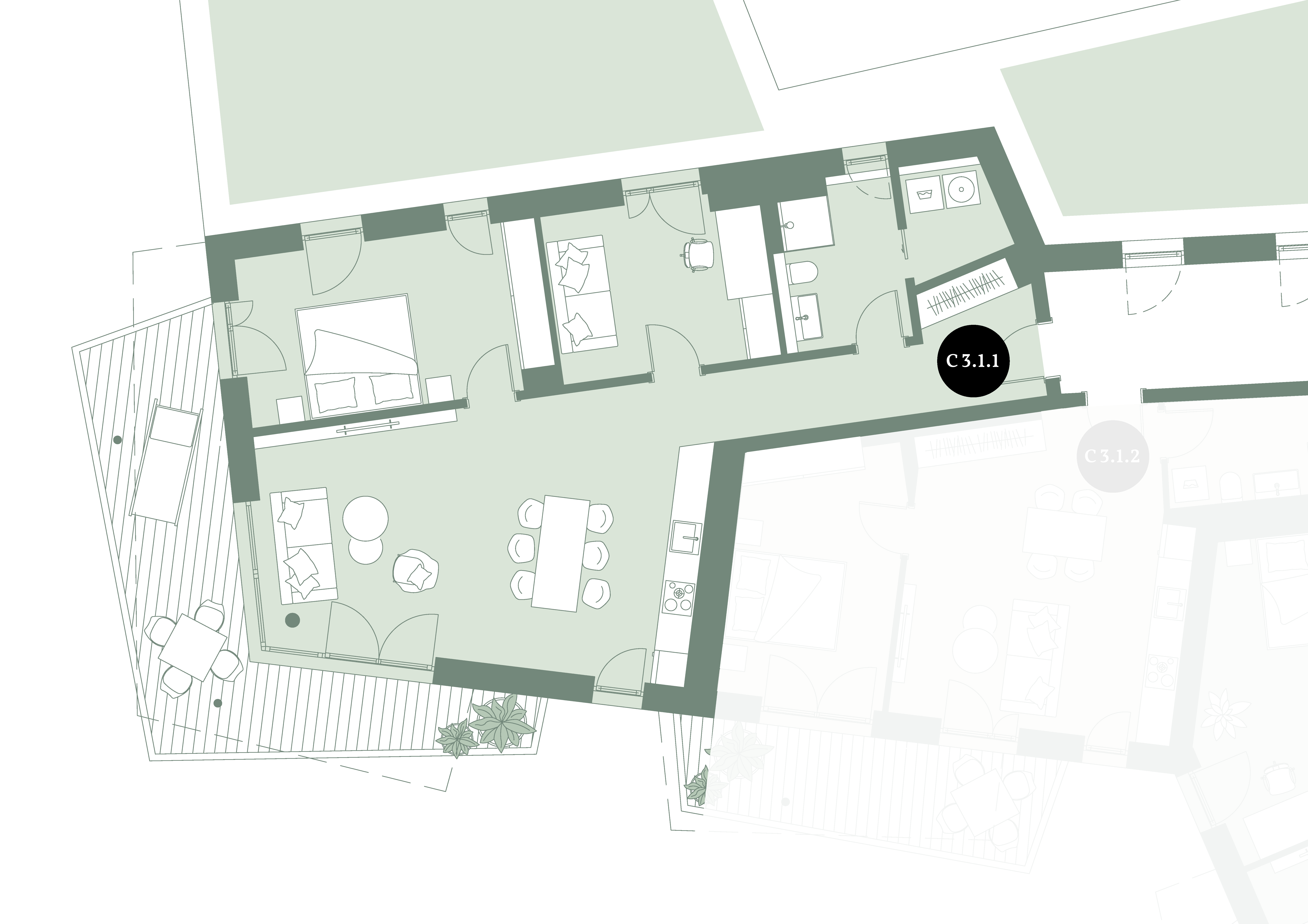
Wohnung C.3.1.1
Conradty-Haus / 1. OG //
Parkwohnung mit Balkon
| Zimmer | 3 |
|---|---|
| Diele | ca. 9 qm |
| Wohnen/Essen/Kochen | ca. 36 qm |
| Schlafen | ca. 16 qm |
| Arbeiten | ca. 11 qm |
| Bad | ca. 6 qm |
| Abstell | ca. 3 qm |
| Balkon | ca. 26 qm |
| Summe Wohnfläche * | ca. 96 qm |
| Kaufpreis Wohnung | 670.000 € |
|---|---|
| 1 Tiefgaragenstellplatz | 39.000 € |
| Gesamtkaufpreis | 709.000 € |
* Bei der Flächenberechnung wird der Balkon zu 50 % berücksichtigt.






